Kokleheia Amfi – Nye leiligheter med utsikt og solrike balkonger i Kristiansand

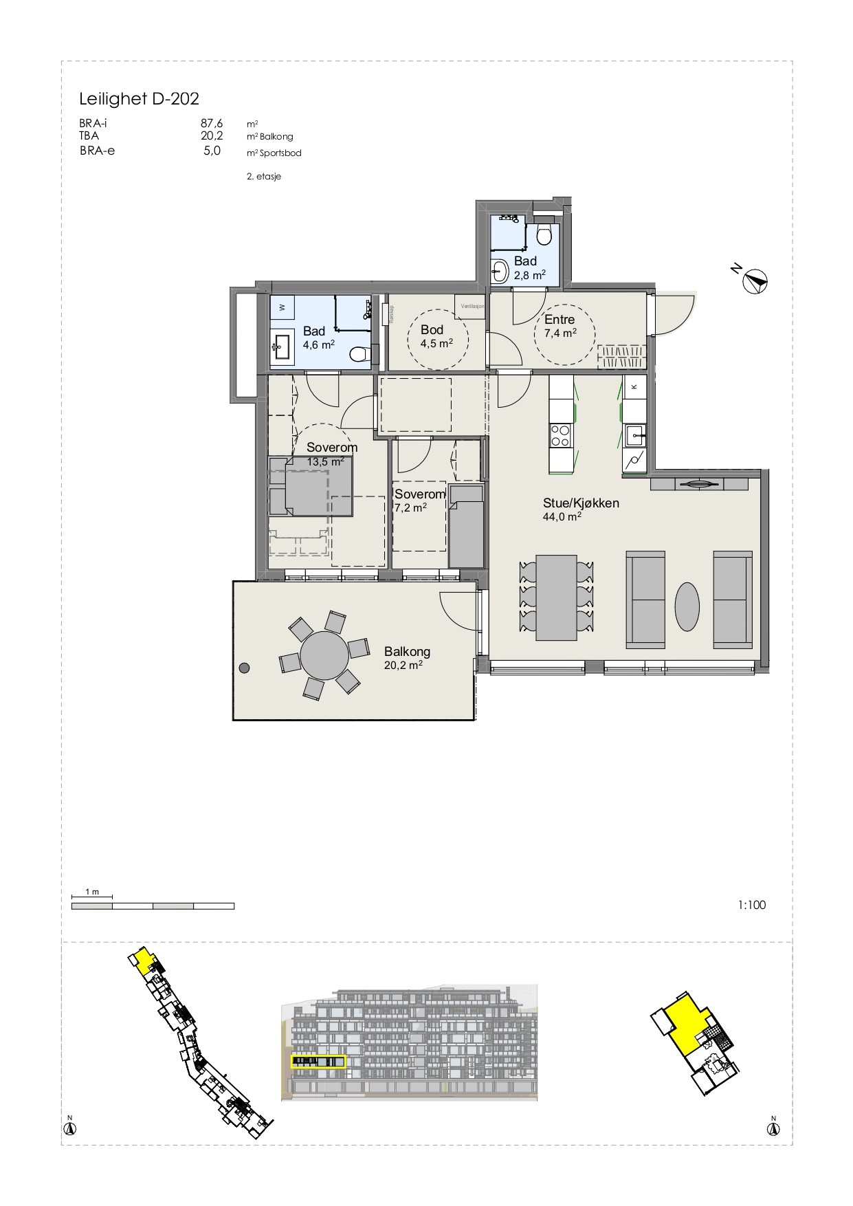
Leilighet D202

  • Totalpris Kr 5 890 000
  • Bruksareal 87,6 m2
  • P-Rom 81,6 m2
  • Soverom 2
  • Balkong/terrasse 20,3 m2
  • Informasjon P-plass kan kjøpes for kr 400,000
  • Direction of apartment

Alt om pris, boligen og kjøp

Ta kontakt for pris

Totalprisen for boligen = innskudd + fellesgjeld og omkostninger.

Innskudd

Den andelen av totalprisen du skal finansiere, som ikke dekkes av fellesgjeld.

Fellesgjeld

Fellesgjelden er et lån vi har forhandlet fram for alle boligene samlet. Du er ansvarlig for den delen av fellesgjelden som er knyttet til din bolig. Renter på felleslån er beregnet ut fra gjeldene rente (5,5%). Fellesutgiftene kan reduseres hvis du benytter IN-ordning. Se salgsoppgave/prospekt for mer informasjon