Kokleheia Amfi – Nye leiligheter med utsikt og solrike balkonger i Kristiansand

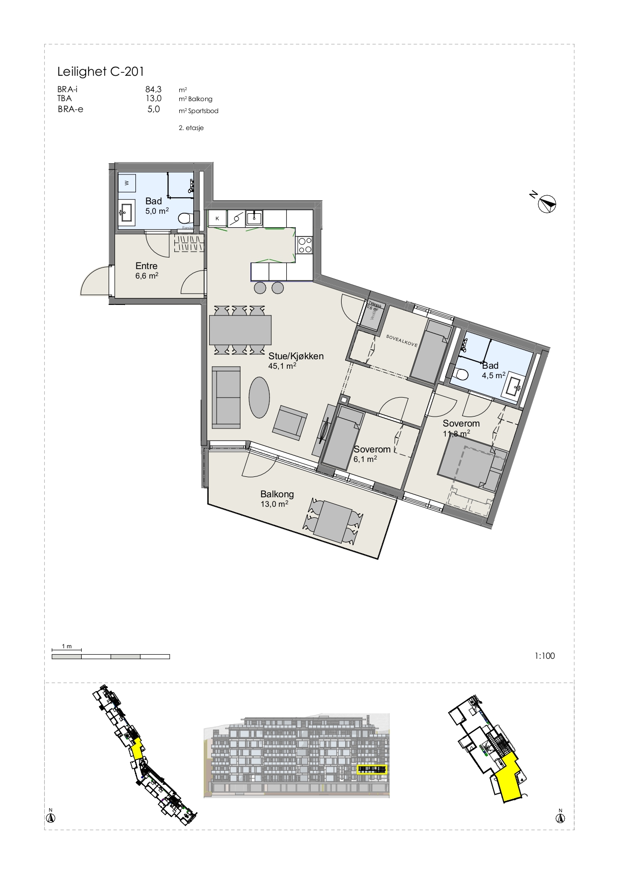
Leilighet C201

  • Totalpris Solgt
  • Bruksareal 84,2 m2
  • P-Rom 77 m2
  • Soverom 2
  • Balkong/terrasse 13 m2
  • Informasjon P-plass kan kjøpes for kr 400,000. Plantegningen viser oppmålte rom, mens BRA-i inkluderer blant annet inner- og yttervegger. Det er derfor avvik mellom disse to.
  • Direction of apartment

Alt om pris, boligen og kjøp

Ta kontakt for pris

Totalprisen for boligen = innskudd + fellesgjeld og omkostninger.

Innskudd

Den andelen av totalprisen du skal finansiere, som ikke dekkes av fellesgjeld.

Fellesgjeld

Fellesgjelden er et lån vi har forhandlet fram for alle boligene samlet. Du er ansvarlig for den delen av fellesgjelden som er knyttet til din bolig. Renter på felleslån er beregnet ut fra gjeldene rente (5,5%). Fellesutgiftene kan reduseres hvis du benytter IN-ordning. Se salgsoppgave/prospekt for mer informasjon